Trilocale in vendita

Torino, Corso grosseto - Borgata Vittoria
€ 142.000
3 locali 3 locali
85 Mq 85 Mq
1 bagno 1 bagno

Trilocale in vendita

Torino, Corso grosseto - Borgata Vittoria

Descrizione annuncio

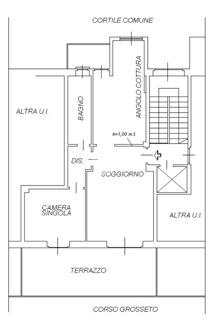
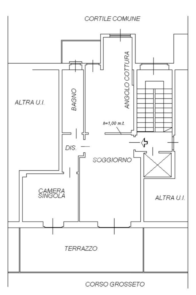
ATTICO

AMPIO TERRAZZO

STABILE RIFATTO

Corso Grosseto:

L'appartamento si trova in uno splendido contesto anni '70 completamente ristrutturato nel 2024 con ecobonus.

Salendo all'ultimo piano e superando la porta blindata si apre uno ampio living su salone, qui sono state eliminate le pareti della cucina e della camera per creare una zona giorno dalle dimensioni molto grandi; la parete cucina rimane comda, ben organizzata e con spazio per tavolo sedie e mobilio di vario genere, oltre ad un eventuale divano e parete soggiorno, mentre la zona salone è attualmente disposta con arredo soggiorno, divanetti e parete living;

la camera è predisposta per un letto con armadio e comodini e sia questa che il salone hanno l'affaccio sul terrazzo dell'appartamento che affaccia su una visuale ampia e libera.

L'appartamento si completa del bagno con vasca idromassaggio e cantina al piano interrato.

La soluzione è stata completamente ristrutturata con finiture moderne e molto pregevoli.

Mostra tutto

Nelle vicinanze

Trasporto pubblico Trasporto pubblico
stazione di Torino Rebaudengo Fossata
stazione di Torino Rebaudengo Fossata
500 m
Torino Dora GTT
Torino Dora GTT
1,7 Km
Derna
Derna
950 m
Gottardo
Gottardo
990 m
Ala Di Stura
Ala Di Stura
130 m
Ricariche auto elettriche Ricariche auto elettriche
Bluetorino Piazza Derna
1,0 Km
Edit Torino
1,4 Km
Bluetorino Stradella
1,6 Km
LIDL Torino Via Bologna
2,4 Km
Scuole Scuole
Scuola Paritaria SAN Giuseppe Cafasso
400 m
Direzione Didattica "Albert Sabin"
650 m
Scuola Media "Viotti"
650 m
Scuole
670 m
Istituto di Istruzione Superiore Romolo Zerboni
750 m
Farmacia Farmacia
Farmacia Santa Elisabetta
370 m
Farmacia Santi Angeli Custodi S.N.C.
550 m
Chierici SNC
580 m
Farmacia Breglio
650 m
Farmacia Policlinico
730 m
Ospedali Ospedali
Ospedale San Giovanni Bosco
1,3 Km
Ospedale Amedeo di Savoia
2,8 Km
Amedeo di Savoia
2,8 Km
Supermercati Supermercati
Lidl
890 m
iN's
1,1 Km
Penny market
1,2 Km
Eurospin
1,3 Km
In's
1,3 Km
Negozi Negozi
Focacceria La Trinacria
1,1 Km
Panificio Voglia di pane
1,2 Km
Maa Alimentari
1,2 Km
Facit
1,5 Km
Negozi
1,6 Km
Bar Bar
The World
630 m
Spazio 211
630 m
Bar Cappuccino Night
780 m
Degusto
1,0 Km
Bar
1,4 Km
Ristoranti Ristoranti
Nuovo Jubin
850 m
Il nuovo biellese
1,0 Km
Tourlé
1,0 Km
Mr Ang
1,1 Km
Pizzeria da Fischetto
1,1 Km
Mostra tutto

Caratteristiche

Rif.:
61140389
Piano:
8 di 8 con ascensore (Piano alto)
Balconi:
1
Terrazzi:
1
Camere da letto:
1
Arredamento:
Assente
Mostra tutto
Prezzo Prezzo
€ 142.000
Rata mutuo Rata mutuo
€ 670 / mese
Spese annue Spese annue
€ 1.100
Proponi il tuo prezzoProponi il tuo prezzo

Classe Energetica

G
G
G
G
G
G
G
G
G
EP globale non rinnovabile:
173.55 kW h/m² anno
EP globale rinnovabile:
99.70 kW h/m² anno
EP invernale del fabbricato:
EP estiva del fabbricato:
Anno di costruzione:
1966
Riscaldamento:
Centralizzato
Tipo impianto:
A radiatori
Tipo alimentazione:
Metano

Ti interessa visionare l'immobile?

Fissa un appuntamento  Fissa un appuntamento

Richiedi informazioni

Clicca su Leggi per aprire l'informativa
* Questi campi sono obbligatori

Calcola il tuo mutuo

Semplice e senza impegno
Anticipo

( % )
Mutuo

( % )

pochi semplici passi

inserisci i tuoi dati
Questionario completato
Grazie per aver richiesto un appuntamento senza impegno con un nostro Consulente del Credito e Assicurativo.

Hai inserito correttamente tutti i dati necessari e a breve riceverai una e-mail con un link da convalidare per inviare i tuoi dati.
Affiliato
Case Borgo Vittoria Sas
Via Chiesa Della Salute, 71/B 10147 Torino (TO)

Il nostro staff


  • Giulia Conversano
    Coordinatrice

  • Davide Rolfo
    Affiliato

  • Ekram Sebti
    Collaboratrice
Via Chiesa Della Salute, 71/B 10147 Torino (TO)
Zona: Torino Borgo Vittoria-Chiesa della Salute
Mostra su mappa
Orari: lun-ven 09.00-12.30 15.00-20.00 sab 09.00-12.30 14.30-17.30
Affiliato
Case Borgo Vittoria Sas
Via Chiesa Della Salute, 71/B 10147 Torino (TO)

2025 Tecnocasa Franchising S.p.A. - P. IVA 08365160152 - Via Monte Bianco 60/A 20089 Rozzano (MI). Ogni agenzia ha un proprio titolare ed è autonoma. Privacy policy | Policy utilizzo | Cookie policy